Available
For further information or to arrange a viewing please contact Morgan Williams.
Land Behind The Rose Inn, Hood Lane, Warrington
- Full Planning Approved
- Cleared Site
- 9 Unit Scheme
- No Section 106
- Ready to Build Out
- Freehold
- Popular Residential Area
- Level 0.2 Acre Plot
OF 9 NO. NEW BUILD HOMES
Full Details
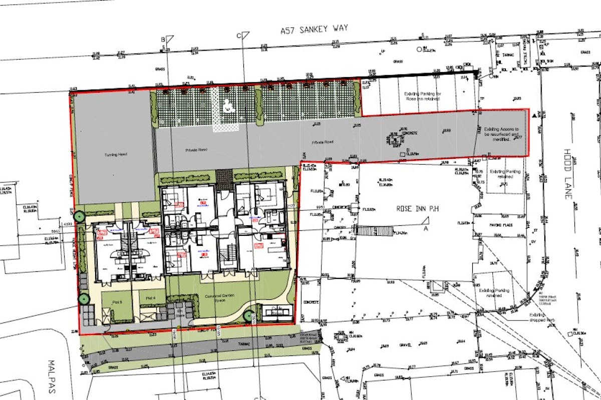
We are delighted to bring to the market a rare Freehold residential development site, that is offered for sale, with the benefit of Full Planning Permission for the construction of 9 individual units in a predominantly Three Storey building with landscaped grounds, car parking and access from Hood Lane.
The permission is for the development of a scheme of 2 no. 3 bed units, 5 no. 2 bed units and 2 no. 1 bed units.
There are no Section 106 Conditions attached to the Planning Permission and access is via a direct Right of Way to and from Hood Lane, along with a designated parking area.
The site is highly visible from the A57 Sankey way, this affords an excellent advertising opportunity for the scheme, developer and builder, providing the ability to display to large volumes of passing traffic, recorded as high as 30,000 plus vehicles per day.
Various surveys and reports can be made available via direct enquiry to our offices.
The site extends to 0.2 Acres (0.08 Hectares).
Location
The site is located on the part of Hood Lane to the south of the A57 Sankey Way, to the rear of the Rose Inn Public House.
The A57 Sankey Way runs parallel to the scheme and the site is virtually adjacent to David Lloyd Leisure and Tennis Centre. Asda Westbrook and Odeon Cinema are within easy reach 1 mile to the north.
The locality is a popular and well regarded residential neighbourhood and local amenities are plentiful, with Warrington Town Centre being just 2 miles to the east, en route is a modern Lidl and KFC drive-thru.
Warrington boasts three Railway Stations, including the new Chapelford junction, which is on the main Manchester - Liverpool line and this is within convenient walking distance to the scheme. The motorway network is also within easy reach, via the M62 junction 11 (2 miles), which connects easily to M57, M6 and M56 motorways.
Tenure
Freehold.
Planning
Full Planning Permission has been granted for the erection of 9 no. units within a part two storey and part three storey building, with landscaped grounds, car parking and access from Hood Lane (Planning Number 2024/01307/FUL).
Interested parties can make their own enquiries via the attached link https://online.warrington.gov.uk/planning/index.html?fa=getApplication&id=213208.
Asking Price
Offers over £350,000 are invited. We are advised that VAT is applicable to the above asking price.
Anti-Money Laundering Regulations
In accordance with Anti-Money Laundering Regulations, two forms of Identification and confirmation of the source of funding will be required from the successful purchaser.
Available Area
| Name/Floor | Sq Ft | Sq M | Price | Availability |
|---|---|---|---|---|
| unit 1 - 2 bed | 756.27 | 70.26 | On Application | Available |
| unit 2 - 1 bed | 400.31 | 37.19 | On Application | Available |
| unit 3 - 1 bed | 400.31 | 37.19 | On Application | Available |
| unit 4 - 3 bed | 907.40 | 84.30 | On Application | Available |
| unit 5 - 3 bed | 975.21 | 90.60 | On Application | Available |
| unit 6 - 2 bed | 757.56 | 70.38 | On Application | Available |
| unit 7 - 2 bed | 757.56 | 70.38 | On Application | Available |
| unit 8 - 2 bed | 757.56 | 70.38 | On Application | Available |
| unit 9 - 2 bed | 757.56 | 70.38 | On Application | Available |
| Total | 6,469.74 | 601.06 |
Available
For further information or to arrange a viewing please contact Morgan Williams.

