Available
For further information or to arrange a viewing please contact Morgan Williams.
Bargyloo Farm, Warrington Road, Widnes
- Detached Home
- Good Condition Throughout
- Established Gardens
- Set Back from Road
- Semi-Rural Location
- Close to M62
Full Details
An outstanding traditional country farmhouse set in the rural location of Bold Heath, and set on the exclusive development of Bargyloo Farm where the property is currently set up to the front with a 4 bedroom, 2 bathroom, 2 reception rooms, kitchen and downstairs toilet with very spacious accommodation both to the ground and first floor with the added benefit of a cellar room.
To the rear, 3 further bedrooms,3 bathrooms, kitchen, utility and 2 further reception rooms.
The property can easily be returned back to one property by removal of a studded wall. The current layout would suit large families who want an independent living space.
The property is set in its own extensive lawns and gardens. The property benefits from oil central heating and accessed by a gated driveway with a double garage to the front.
The property has recently been modernised and offers a high standard of living space in a rural setting.
In total and as one property, Bargyloo Farmhouse has 7 bedrooms, 4 reception rooms, 6 bathrooms, 2 kitchens, utility room and a large cellar in around 350 square metres of living space.
The substantial property offers large surrounding lawned gardens to the front and rear, with many established trees and shrubs. It also lies adjacent to a golf course and overlooks farmers fields to the front.
There is also a new build cottage currently undergoing construction, including - 3 bedrooms, 2 bathrooms, kitchen, living room, solar powered, 120 square metres of living space, to the rear of the property and available by separate negotiation, which can be included in the sale with offers around £495.000.
Location
The property is situated along a private driveway just off the A57 Warrington Road in Bold Heath, a well regarded semi-rural location between Warrington and St Helens on the outskirts of Great Sankey.
Bold Heath is located close to the motorway networks and is easily accessible from local towns and cities.
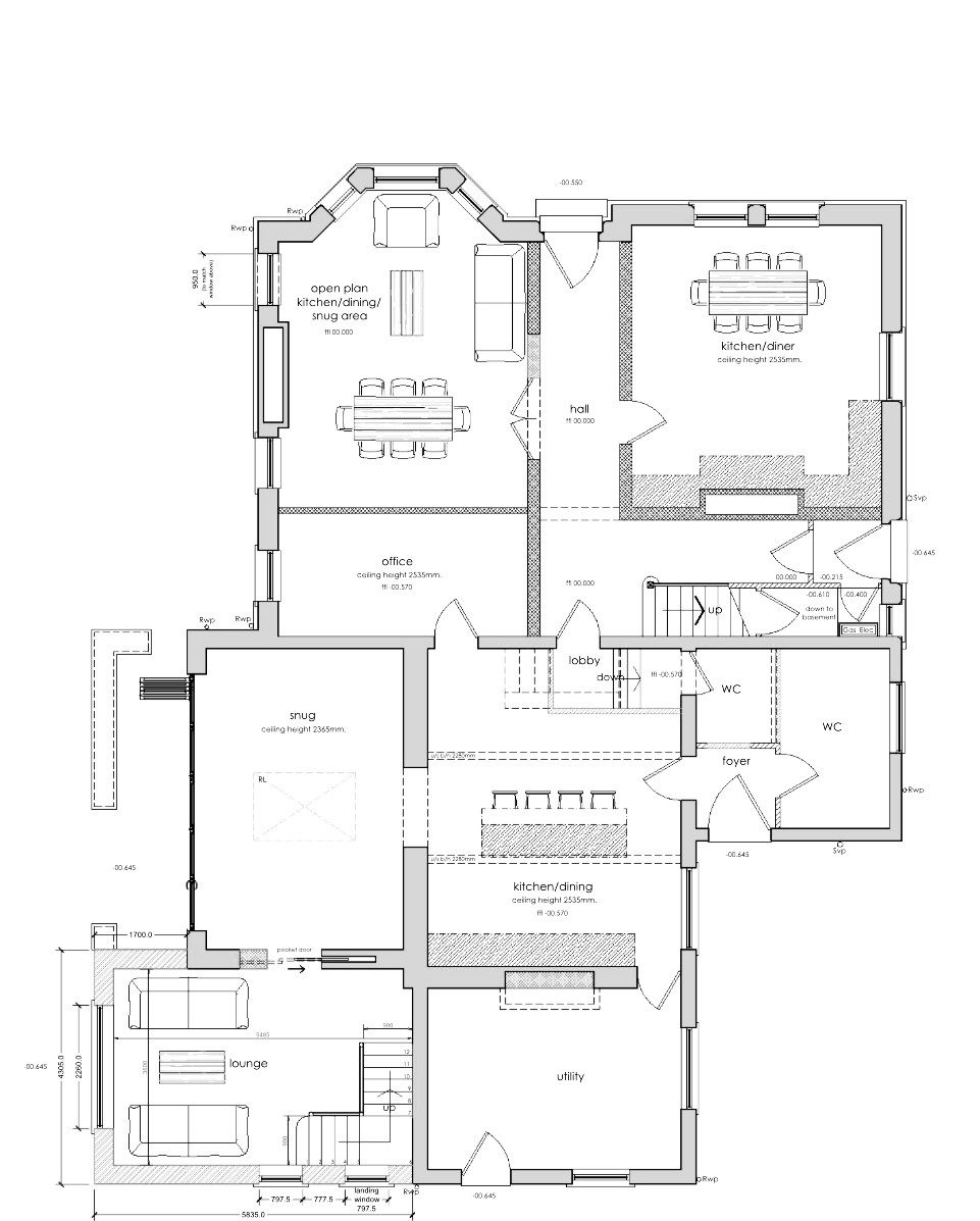
Accommodation
Front portion
Entrance Hallway with a Victorian tiled floor, which provides access to 4 bedrooms via the balustrade staircase.
Living room 5.84m x 4.55m
Features a double glazed walk in bay window to the front ,and picture window to the side. Media wall with feature electric fire and TV, carpeted, ornate coved ceiling and high level skirting.
Dining room/sitting room 5.2m x 4.57m
Double glazed picture windows to the front. Solid wood flooring. Fireplace with electric fire and ornate coved ceiling.
Kitchen(1) 4.57m x 2.26m
Double glazed picture windows to the side, original coved ceiling with a tiled floor. Pebble shaker base and wall units, with an electric AGA style oven, worktops, fridge freezer ,larder cupboard , dishwasher and sink.
Downstairs toilet 1.5m x 1.5m
White toilet and sink, washing machine, shelving, tiled floor.
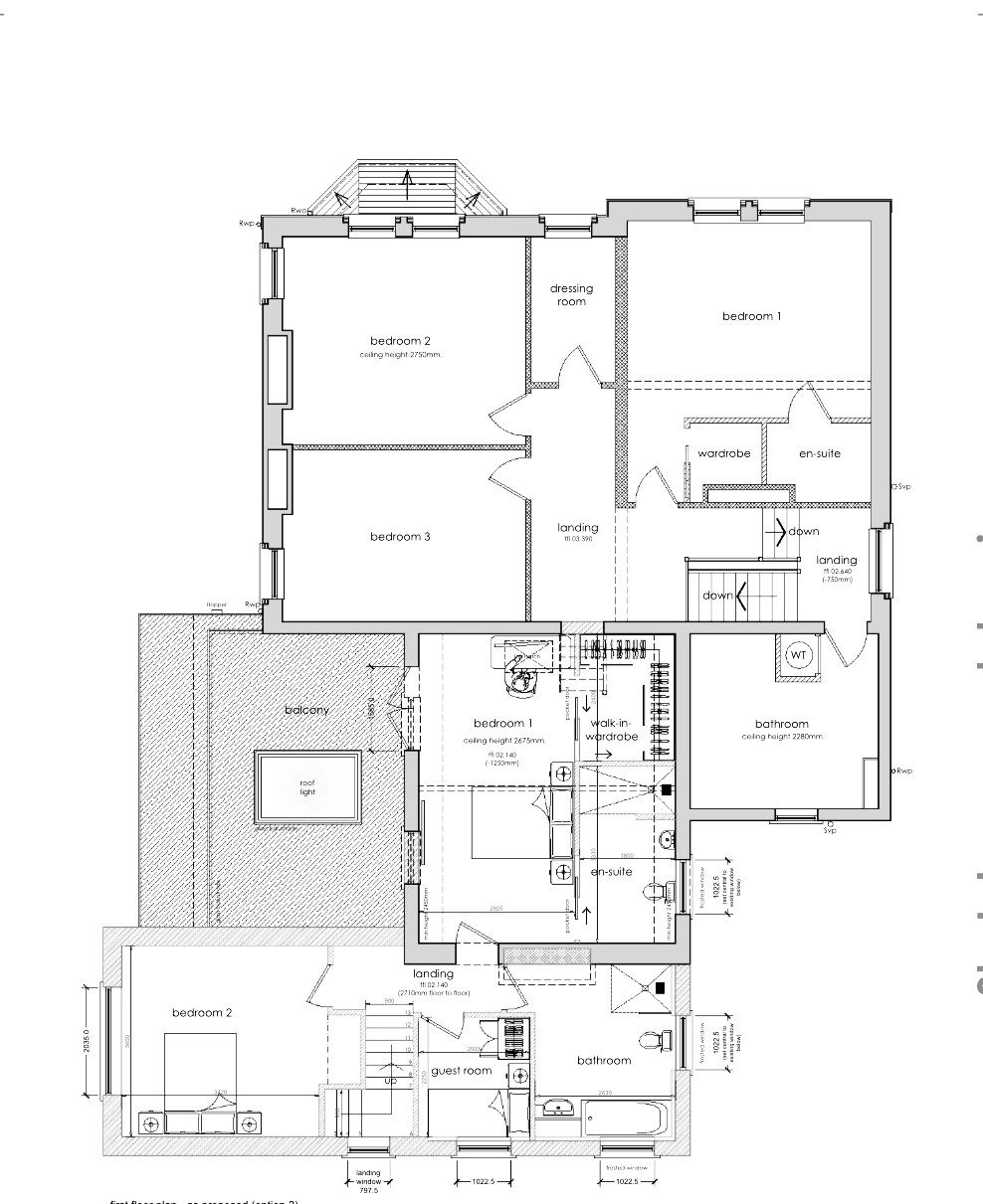
Landing area
A split level landing area which provides entry to all first floor rooms at the front, with original coved ceilings and high level skirting with dado rail.
Family bathroom
A fantastic recently upgraded bathroom, with fully tiled white marble effect floors and walls, a walk in large shower with rainfall shower head, bath, toilet, 2 heated chrome radiators, wash basin with drawer unit and double glazed window .
Master bedroom 4.55m x 3.7m
A superb master suite with access to a walk in wardrobe, and suite shower room with two double glazed windows to the front.
En suite
A modern 3 piece suite with a walk in shower, toilet and wash basin with drawers, an illuminated mirror, and heated chrome towel radiator.
Bedroom 2 4.57m x 3.91m
2 double glazed windows to the front and 1 to the side. Carpeted and tastefully decorated, with coved ceiling.
Bedroom 3 4.65m x3.23m
Double glazed window to the side, with coved ceiling with access to the loft which is boarded out .
Bedroom 4 2.74m x 1.6m
Double glazed unit to the front currently used as a dressing room.
Cellar
Tanked out with a pump installed. A totally dry space currently used for storage and accessed off the main hallway.
3 phase electricity is currently installed at the property.
Rear portion.
Inner hall.
This leads from the back door (1) to a ground floor bathroom and kitchen.
Ground floor bathroom.
Providing sink with a drawer unit and fully tiled, with a double glazed window to the side.
Kitchen (2) 4.60m x 5.00m.
With large island, including cupboards, integrated hob. White wall units built in double ovens, sink and double fridge.
Utility room 4.65m x 3.33m.
Fitted with a range of white units, washing machine, drier, sink and patterned tiled effect floor, heated towel radiator, 2 double glazed windows. Access door to the rear of the property.
Garden room 3.80m x 6.60m.
Sliding bifold doors which open out onto the side garden with a roof light.
Rear sitting room 5.70m x 3.50m.
With 2 double glazed windows overlooking the rear, staircase leading upto the upstairs inner hallway. Sliding patio doors overlooking the side garden.
Bedroom 5 5.8m x 4.78m.
2x double glazed windows overlooking the side garden.
Walk in wardrobe, with an en-suite.
En-suite shower room 1.35m x 2.60m.
Grey fully tiled walls and floor, chrome heated towel rail, with toilet, basin with drawers and walk in shower
Bedroom 6 3.85m x 3.55m.
Overlooking side garden with 2x double glazed windows.
Guest Bedroom 2.25m x 2.45m.
With a Double glazed window overlooking the rear.
Family bathroom(2) 2.35m x 3.27m.
Cream and brown fully tiled walls and floor, with a walk in shower, basin, toilet and bath.
Double glazed windows overlooking the side drive.
Detached garage to the front with electric up and over door.
Gardens.
Available Area
Available
For further information or to arrange a viewing please contact Morgan Williams.





